您好,欢迎您访问无锡华锦源环保科技有限公司的官方网站!

你所在的位置:网站首页 > 产品展示

切削液净化设备








一、概况
  含油废水对环境造成的危害也越来越大,严重威胁到动植物、甚至人类的生命健康。人类直接摄入石油蒸馏物可发生各种中毒症状,受影响的器官有:肺、肠胃、肾、中枢神经系统和造血系统。中枢神经系统症状有:衰弱、嗜睡、眩晕、痉挛、昏迷。

  油类物质漂浮在水面,形成一层薄膜,水面油膜厚度大于1微米时就可以隔绝空气与水体间的空气交换,阻止空气中的氧溶解于水中,使水中的溶解氧减少,致使水体中浮游生物等因缺氧而死亡,也防碍水生植物的光合作用,从而影响水体的自净作用,甚至使水质变臭,破坏水资源的利用价值,而且在水体表面的聚结油还有可能燃烧而产生安全问题。

  钢管在试压等加工过程中,其表面的油和氧化铁皮等金属杂质会进入切削液中,使切削液变为含油的污水。为了延长切削液的使用寿命,提高零部件的加工精度,减少排放,贵公司决定使用切削液净化油水分离设备,去除切削液中的杂质油,达到清洁生产、节省费用、循环使用、提高钢管质量的目的。

具体参数:
1.废水来源:机加工产生的脏切削液;
2.水池容量:40立方米,池深5米,正常状态下水深5米;
3.工作情况:85%的时间都是在工作状态,工作时油池液面很不稳定,时高时低,液面差有1米。
4. 废水特性:加工过程中产生的切削液废水含油和固体杂质。
5. 处理效果:去除杂质油,使得净化后的切削液中几乎看不到浮油,完全达到循环使用目的。


二、切削液净化的必要性
  金属切削液在水压机工作过程中,起到清洗和防锈等作用。但切削液有一个共同的缺点就是:在使用过程中,由于金属粉末、油污等作用而腐败变质,所以必须及时净化切削液,原因为:
  1、仅靠金属网拦截处理只能拦截大型颗粒的氧化铁皮等金属颗粒,但对杂质油没法处理;
  2、当切削液有杂质油达到一定程度时,会粘附在加工的钢管上,影响在钢管的后续表面处理,从而影响钢管的质量;
  3、当切削液表面有一层杂质油时,会隔绝空气与切削液间的空气交换,阻止空气中的氧溶解于切削液中,使切削液中的溶解氧减少,将会导致厌氧菌大量繁殖,从而使切削液变质发臭。一旦切削液变质发臭不能再使用,只能排放时,就会浪费大量的切削液、面临巨额的排污费、当增加产量时,还面临排污指标不够的危险。

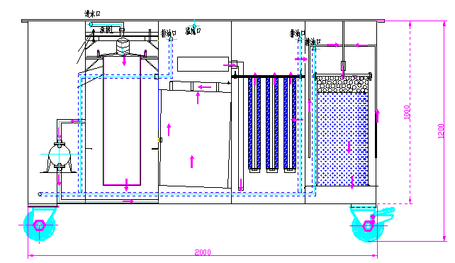
三、华锦源切削液净化设备组成
  华锦源切削液净化设备包括几个部分:
  ◆ 磁铁除大颗粒铁屑系统,作用:消磁、杀菌;
  ◆ 防乳化泵取水系统,作用:防止杂质油乳化到切削液乳中;
  ◆ 过滤袋过滤固体杂质系统,作用:处理金属屑;
  ◆ 聚集油滴预处理系统,作用:给小油滴的能量,加快这些小油滴的运动速度,为快速处理掉切削液中杂质油提供必要的前提条件;
  ◆ 油水分离滤芯聚集机械乳化油系统,作用:使溶解在切削液中的杂质油变为浮油;
  ◆ 油水分离滤料精处理机械乳化油系统,作用:彻底清除切削液中的杂质油;
  ◆ 排油系统,作用:将处理出来的杂质油排出,进行回收利用。
  设备外形尺寸图:




四、华锦源设备处理切削液的效果
  切削液经过华锦源净化设备净化后,处理效果可以达到:
  1、过滤精度高:通过系列的过滤沉降系统,消除切削液中的杂质等固体颗粒,5微米以上的颗粒全部清除干净;
  2、除油彻底:通过聚集、排油系统,清除了切削液中的浮油、分散油和机械乳化油,而切削液本身化学乳化的矿物油等没有变化,即没有破坏切削液本身性能。净化后的切削液浮油含油量低于10毫克/升(十万分之一);
  3、有消磁作用:设备中有磁铁消除磁性粒子的系统,可以消除部分粒子的磁性;
  4、不改变切削液性能:整个设备系统中没有添加任何化学物质,也就可以防止切削液的成分改变,切削液的PH值等不会变化,即通过华锦源切削液净化设备净化后的切削液性能没有改变(即切削液的冷却性能、防锈性能、润滑性能、清洗性能等没有改变),只处理掉了使切削液变质的杂质等污染物(使得切削液的SS、含油量、细菌值、电导率等达到回用标准),真正达到净化切削液、使切削液能回用的目的。

五、华锦源切削液净化油水分离设备优势
  1、不使用任何化学药剂,不破坏原有切削液的有效成分和性能,达到回用要求;
  2、占地面积小,投资少,见效快;
  3、安装简单,操作方便,可根据用户需要提供设备的维护服务;


六、水压机循环系统工艺


七、常规方法
  切削液净化常规方法
  重力分离装置:油泄漏到切削液中后,根据油比水轻的原理,大部分会浮在水面。利用重力分离装置,可以处理掉大部分浮油,但没法处理其他形式的油。
  离心分离装置:利用油水密度不一样,在高速旋转装置中油、水产生的离心力和向心力不一样的原理,可以处理掉大颗粒油,但不能处理水中的乳化油和溶解油等,甚至还可能将部分浮油也乳化到水中。
  钢带式撇有装置:通过亲油的钢带将水中的浮油粘附到钢带上,将浮油带出水面。只能处理大量浮油,当水面浮油很少时,钢带就没效果了,更不能处理水中其他形式的油。
  过滤装置:以某种多孔物质为介质,在外力作用下,使固体颗粒和油滴截留在介质上。切削液净化常用的过滤装置有链板式过滤装置、网式过滤装置、带式过滤装置和饼层过滤与深床过滤装置等。其特点是:如果孔径太大,比孔径小的油滴会截留不住,如小颗粒的分散油、机械乳化油和溶解油等,也就是处理切削液中的油污不彻底;如果孔径小,由于油有一定的粘性,很容易堵塞小孔径;另外,如果孔径非常小(纳米级以上,如膜分离装置),除了非常容易堵塞外,还会过滤掉切削液中其他有效成分,从而使切削液性能受到影响。
  吸附装置:利用多孔材料,通过毛细血管原理,将油吸附到吸附材料上。问题是:一般吸附材料吸油量很少,如一吨活性炭一般只能吸20公斤左右的油,很容易饱和,同时,由于油有一定的粘性,很容易堵塞。
  磁性分离装置:利用磁性滚筒吸住切削液中的铁屑和含铁合金颗粒,但不能处理切削液中的油污。
  气浮装置:利用微气泡将油滴带出切削液,含油多时有效果,但当油少时,如表面只有薄薄的一层油时,油刮不出来,也就是除油不彻底,而这薄层油容易滋生微生物,而且不能处理固体杂质。
  综合处理装置:使用上述两种或两种以上的装置组合而成,净化切削液效果比使用单种装置效果要好,延长切削液使用寿命也要长些,如集中处理系统。特点是处理金属颗粒比较彻底,也能处理掉大部分浮油,但对于机械乳化油和溶解油还是没办法,仍然存在切削液变质的危险。例如集中处理系统,由于切削液中的油污处理不干净,滋生细菌,导致管路管径变小,影响流量,严重的还会导致管路堵塞,当然切削液也会变质,终导致切削液没法回用。


八、净化设备优势


九、净化设备应用现场


十、再生设备使用现场




CONTACT US

联系我们

欢迎您通过以下方式联系华锦源环保 / 或者给华锦源环保留言
华锦源环保,与您同行,没有好,只有更好。这是公司一直努力的奋斗目标。

联系人:杭锦
手机:15161528509

电话 TEL:
0510-85187068

传真 FAX:
+0510-85183818

邮箱 E-MAIL:
sales@hjdlsb.com

地址 ADD:
宜兴市周铁镇竺西工业园中兴路1号

(标有* 记号的为必填选项)