您好,欢迎您访问无锡华锦源环保科技有限公司的官方网站!

你所在的位置:网站首页 > 产品展示

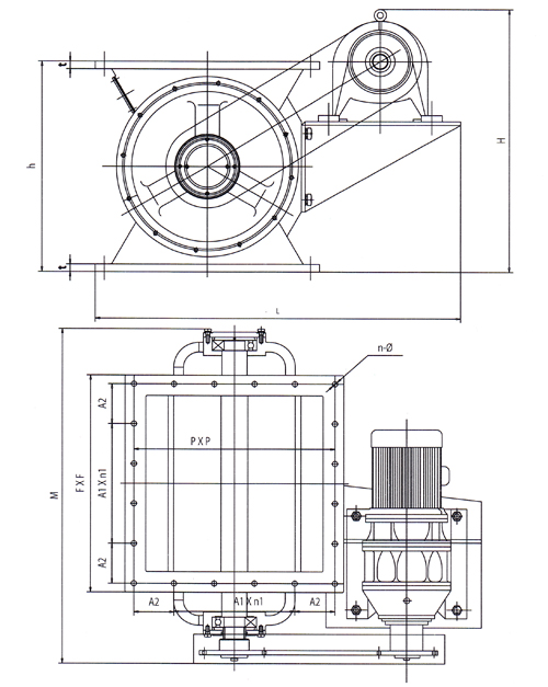
HJ-XG型电动给料机

HJ—XG型电动给料机用于输送干燥粉状物料时作为锁气,均匀给料的场合。它广泛适用于水泥厂、化工厂以及火力发电厂,火力发电厂把它装在电除尘器、省煤器、空气预热器等灰斗下部。本机的工作温度可高达200℃,如特殊订货,可提高到450℃。

本机系列产品的特点是密封性好,壳体耐磨,整机轻巧,便于布置和维修。

本机还可配用调频电机或其它调速电机,以得到各种不同的出力。

HJ—XG型电动给料机外形尺寸表

上一页:HJ-KDS 库底、库侧卸料器
下一页:HJ-JZ型插板门

CONTACT US

联系我们

欢迎您通过以下方式联系华锦源环保 / 或者给华锦源环保留言
华锦源环保,与您同行,没有好,只有更好。这是公司一直努力的奋斗目标。

联系人:杭锦
手机:15161528509

电话 TEL:
0510-85187068

传真 FAX:
+0510-85183818

邮箱 E-MAIL:
sales@hjdlsb.com

地址 ADD:
宜兴市周铁镇竺西工业园中兴路1号

(标有* 记号的为必填选项)