您好,欢迎您访问无锡华锦源环保科技有限公司的官方网站!

你所在的位置:网站首页 > 产品展示

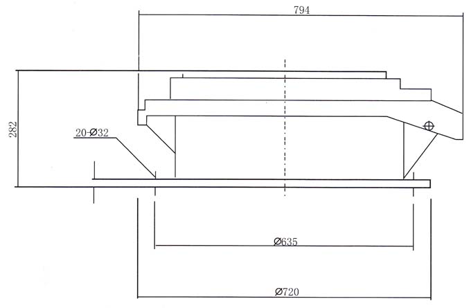
508压力真空释放阀

产品概况

508压力真空释放阀适宜布置于储灰库顶部,在灰库进气、排气超压和不正常的温度变化时,保护储灰库不受过量的正压和负压影响,是灰库一种必备的保护装置。

规格

入口尺寸 标准透气值 透气值(pa) 使用温度(℃) 重量(kg)
(mm) 压力 真空 压力 真空
508 769 220 2636 880 ≤80 98

上一页:HJ-XLS 螺旋输灰机
下一页:HJ-XDG型三通阀

CONTACT US

联系我们

欢迎您通过以下方式联系华锦源环保 / 或者给华锦源环保留言
华锦源环保,与您同行,没有好,只有更好。这是公司一直努力的奋斗目标。

联系人:杭锦
手机:15161528509

电话 TEL:
0510-85187068

传真 FAX:
+0510-85183818

邮箱 E-MAIL:
sales@hjdlsb.com

地址 ADD:
宜兴市周铁镇竺西工业园中兴路1号

(标有* 记号的为必填选项)