设备概况
HJ-DMC型脉冲袋式库顶除尘器适宜布置在各种粉粒料储存库的顶部,用于收集细小干燥粉尘。其工作原理是利用脉冲反吹的压缩空气,清除收尘布袋上沾附的粉尘,使布袋的过滤能力得到及时有效的再生。与机械振打、反吹风等除尘器相比具有:无机械损伤、理风力大、布袋使用寿命长、除尘效率高、长期运行稳定、整机外形美观、安装维修方便的特点。
技术参数
|
项目
|
DMC-12
|
DMC-24
|
DMC-36
|
DMC-48
|
DMC-60
|
DMC-72
|
DMC-84
|
DMC-96
|
DMC-108
|
DMC-120
|
|
过滤面积m2
|
9
|
18
|
27
|
36
|
45
|
54
|
63
|
72
|
81
|
90
|
|
滤袋数量
|
12
|
24
|
36
|
48
|
60
|
72
|
84
|
96
|
108
|
120
|
|
滤袋规格
|
φ120×2000
|
|
工作温度℃
|
<120℃(涤纶)
|
|
设备压力pa
|
1000-1500
|
|
除尘效率
|
99.5%
|
|
入口含尘浓度g/m2
|
<15
|
|
过滤风速m/min
|
0.5-4.0
|
|
处理风量m2/h
|
270-2150
|
540-4300
|
810-6480
|
1080-8640
|
1350-10800
|
1620-12900
|
1890-15100
|
2160~17200
|
2430~19400
|
2700~21600
|
|
喷吹气压mpa
|
0.5~0.7
|
|
|
|
|
|
|
|
|
|
|
脉冲电磁阀(个)
|
2
|
4
|
6
|
8
|
10
|
12
|
14
|
16
|
18
|
20
|
|
脉冲宽度(s)
|
0.1-0.2
|
|
脉冲周期(s)
|
60-120
|
|
脉冲间隔(s)
|
1~50
|
|
耗气量(m2/min)
|
0.126~0.252
|
0.168~0.36
|
0,210~0.420
|
0.252~0.504
|
0.294~0.588
|
0,336~0.672
|
0.378~0.756
|
0.504~1.008
|
0.672~1.334
|
0.924~1.848
|
|
重量(kg)
|
900
|
960
|
1000
|
1050
|
1360
|
2100
|
2510
|
2780
|
3500
|
4550
|
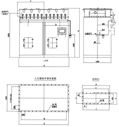
外形尺寸
|
项目
|
A
|
B
|
C
|
D
|
G
|
H
|
J
|
L
|
M
|
N
|
I
|
L1
|
K
|
K1
|
n1-d1
|
n-d
|
|
DMC-12
|
1410
|
1450
|
360
|
466
|
3/4”
|
466
|
441
|
339
|
1200
|
366
|
400
|
420
|
113
|
113
|
14-φ18
|
16-φ12
|
|
DMC-24
|
1410
|
1450
|
360
|
470
|
3/4”
|
470
|
400
|
339
|
1200
|
370
|
400
|
620
|
110
|
110
|
24-φ18
|
14-φ11
|
|
DMC-36
|
1360
|
1400
|
755
|
466
|
3/4”
|
466
|
441
|
339
|
1200
|
366
|
400
|
800
|
147
|
147
|
28-φ18
|
12-φ10
|
|
DMC-48
|
1760
|
1800
|
955
|
890
|
1”
|
890
|
840
|
339
|
1200
|
370
|
800
|
1020
|
110
|
110
|
32-φ18
|
20-φ10
|
|
DMC-60
|
2160
|
2250
|
1200
|
866
|
1”
|
866
|
836
|
336
|
2000
|
366
|
800
|
1250
|
120
|
120
|
36-φ18
|
20-φ11
|
|
DMC-72
|
2614
|
2650
|
1400
|
870
|
1”
|
870
|
840
|
339
|
2400
|
370
|
800
|
1390
|
120
|
120
|
40-φ18
|
26-φ11
|
|
DMC-84
|
3014
|
3050
|
1600
|
1270
|
1”
|
1270
|
1240
|
339
|
2800
|
370
|
1200
|
1590
|
120
|
120
|
44-φ18
|
20-φ11
|
|
DMC-96
|
3410
|
3450
|
1835
|
1270
|
1”
|
1270
|
1240
|
339
|
3200
|
370
|
1200
|
1755
|
124
|
124
|
48-φ18
|
26-φ11
|
|
DMC-108
|
3850
|
3900
|
2035
|
1450
|
1”
|
1450
|
1400
|
339
|
3600
|
370
|
1360
|
2073
|
120
|
120
|
52-φ18
|
34-φ11
|
|
DMC-120
|
4250
|
4300
|
2235
|
1450
|
1”
|
1450
|
1400
|
336
|
4000
|
366
|
1360
|
2350
|
120
|
120
|
56-φ18
|
34-φ11
|
|